no-blinkhus-steinsbo
project
1 / 0
Joakim Tverborgvik
Prosjektet bygges av
Nøkkelinfo
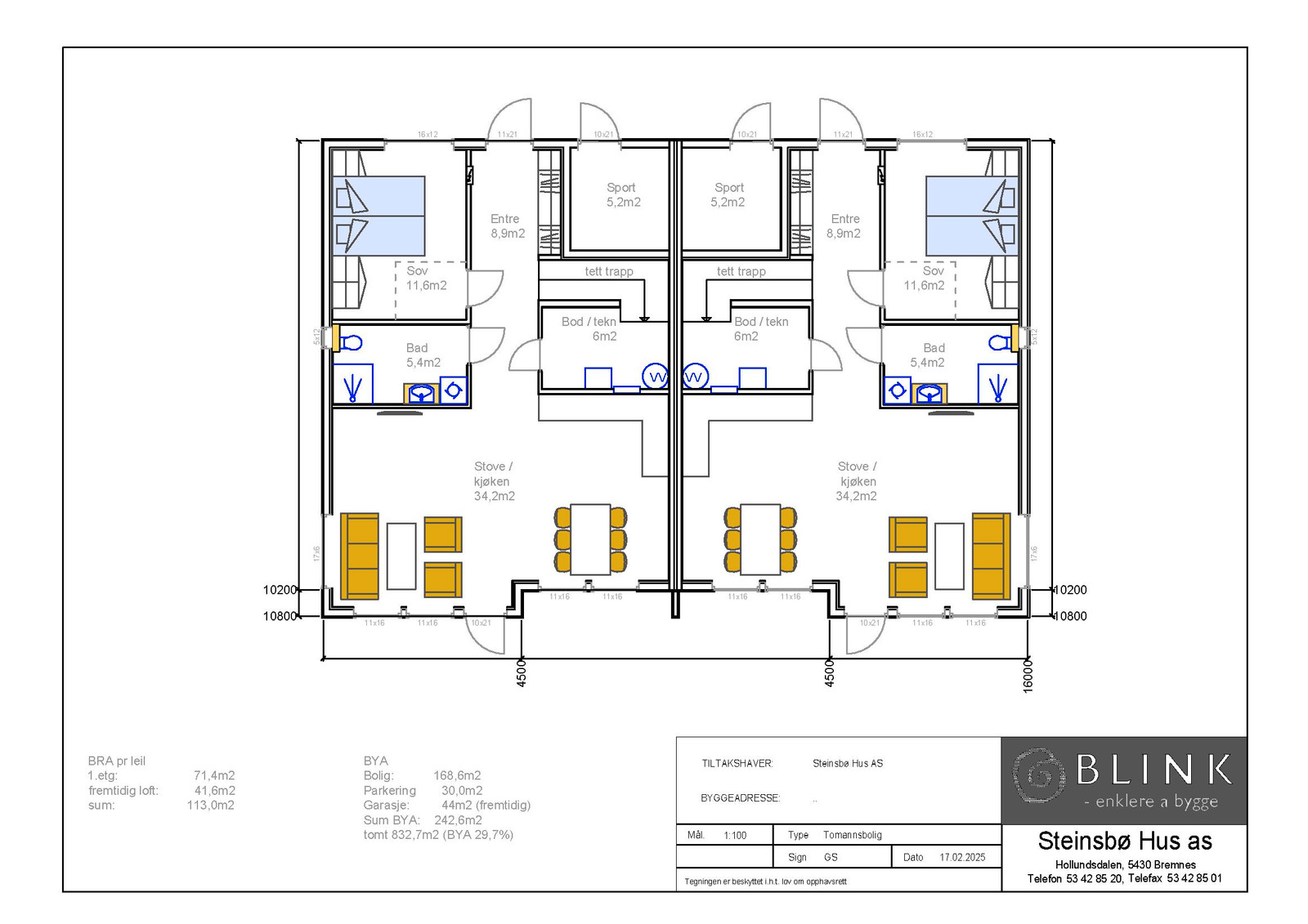
Soverom
3
Eierform
Eier (Selveier)
Boligtype
Tomannsbolig
Gårdsnr.
56
Bruksnr.
72
Tomannsbustad Vespestadhaugen
Me planlegger oppføring av ein ny Tomannsbustad på Vespestad! Desse moderne og romslege heimane er perfekte for både små familiar, fyrste gong kjøparar og eldre. Med ein fantastisk beliggenheit i eit roleg og familievennleg område, er du sikra eit godt og trygt nabolag.
Bustadane har høg standard med moderne løysingar og kvalitetsmaterialar. Her får du eit flott kjøkken og bad, romsleg soverom og ei stor stove/kjøkken løysning med god plass til sosiale samlingar. Bustadane har moglegheit for å innreie loftet.
Kjøp nytt av Steinsbø Hus
- 1-års garanti med 1-års befaring saman med byggeleiar.
- 5 års reklamasjonsrett
- Fast pris på bustaden
- Mogelegheit for finansiering i Husbanken
- Du kan òg få påverke korleis bustaden skal sjå ut innvendig







