Hopp til hovedinnhold
1 / 0

Ny-tegnet tomannsbolig i Stordalen – 3 soverom, moderne planløsning & god beliggenhet

Stordalsveien 10 8011 Bodø
Pris fra
6 890 000 kr
Prosjektet bygges av

Blink Hus Byggpartner

Oppgaven vår er å skape et hjem du trives i. Byggpartner er lokalisert i Bodø og ble grunnlagt i 1992. Gjennom årene har vi opplevd en konstant vekst takket være vårt fokus på kvalitet og kundetilfredshet.

Gå til forhandlersiden

Nøkkelinfo

Soverom

3

Eierform

Eier (Selveier)

Primærrom

100 m2

Gårdsnr.

30

Bruksnr.

83

Om boligen

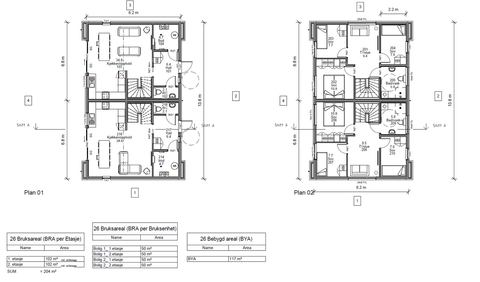
Velkommen til denne ny-arkitekttegnede tomannsboligen i Stordalsveien 10 – et moderne og innholdsrikt hjem bygget med gjennomtenkt planløsning og god standard. Boligen får:

  • 3 soverom, egen tv-stue, bad/vaskerom og WC
  • Lys og åpen kjøkken/stue-løsning
  • Innvendig og utvendig bod
  • Egen inngang — 100 m² boareal på ett plan + loft/2. etasje

Boligen er registrert som selveier, og overtakelse planlagt 1. halvår 2027. Dette er et flott tilbud for deg som ønsker en moderne og lettstelt bolig med god romløsning og attraktiv beliggenhet.
Ta kontakt for mer info eller visning – dette kan bli ditt nye hjem!

Meld interesse

Din kontaktinformasjon

Din melding

Ved å sende inn skjema opprettes det en brukerprofil på blink-hus.no, og dine opplysninger lagres i vår digitale løsning. Utfyllende informasjon om behandlingen og hvordan du kan slette din profil finner du i vår personvernerklæring. Blink Hus vil sende deg nyhetsbrev basert på ditt kundeforhold hos oss. Dersom du ønsker å reservere deg mot nyhetsbrev, gjør du det enkelt ved å krysse av nedenfor.