Blink Hus Sørvest
Blink Hus Sørvest er en bolig- og hytteleverandør i Rogaland som tar på seg oppdrag over hele distriktet fra Ålgård i sør til Finnøy/ Hjelmeland i nord.
Gå til forhandlersiden
Blink Hus Sørvest er en bolig- og hytteleverandør i Rogaland som tar på seg oppdrag over hele distriktet fra Ålgård i sør til Finnøy/ Hjelmeland i nord.
Gå til forhandlersidenTastavollen ligger høyt og fritt på Tastarustå, i etablert boligområde, med skole, barnehage, idrettsanlegg, butikk og turmuligheter i nærområdet.
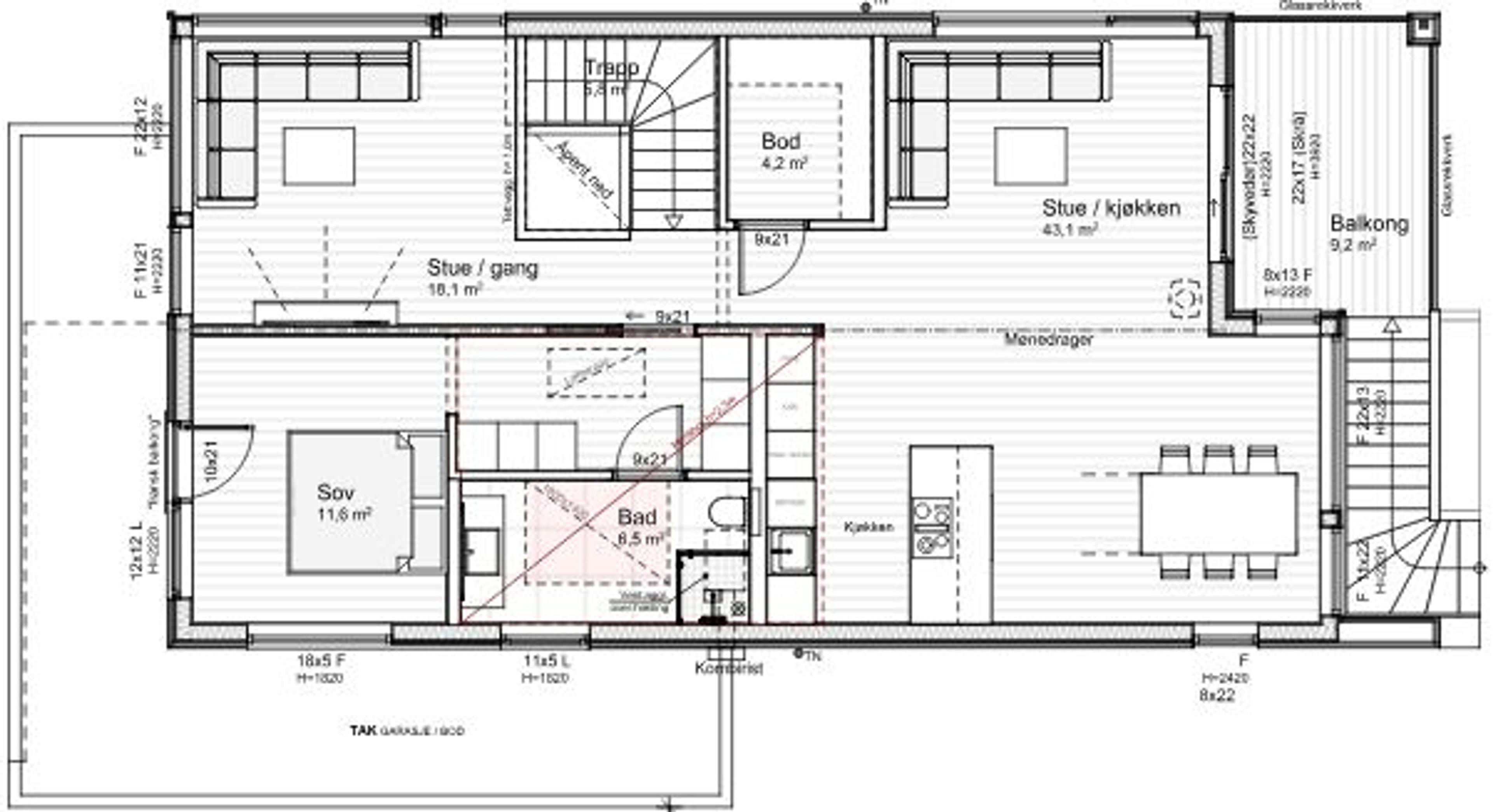
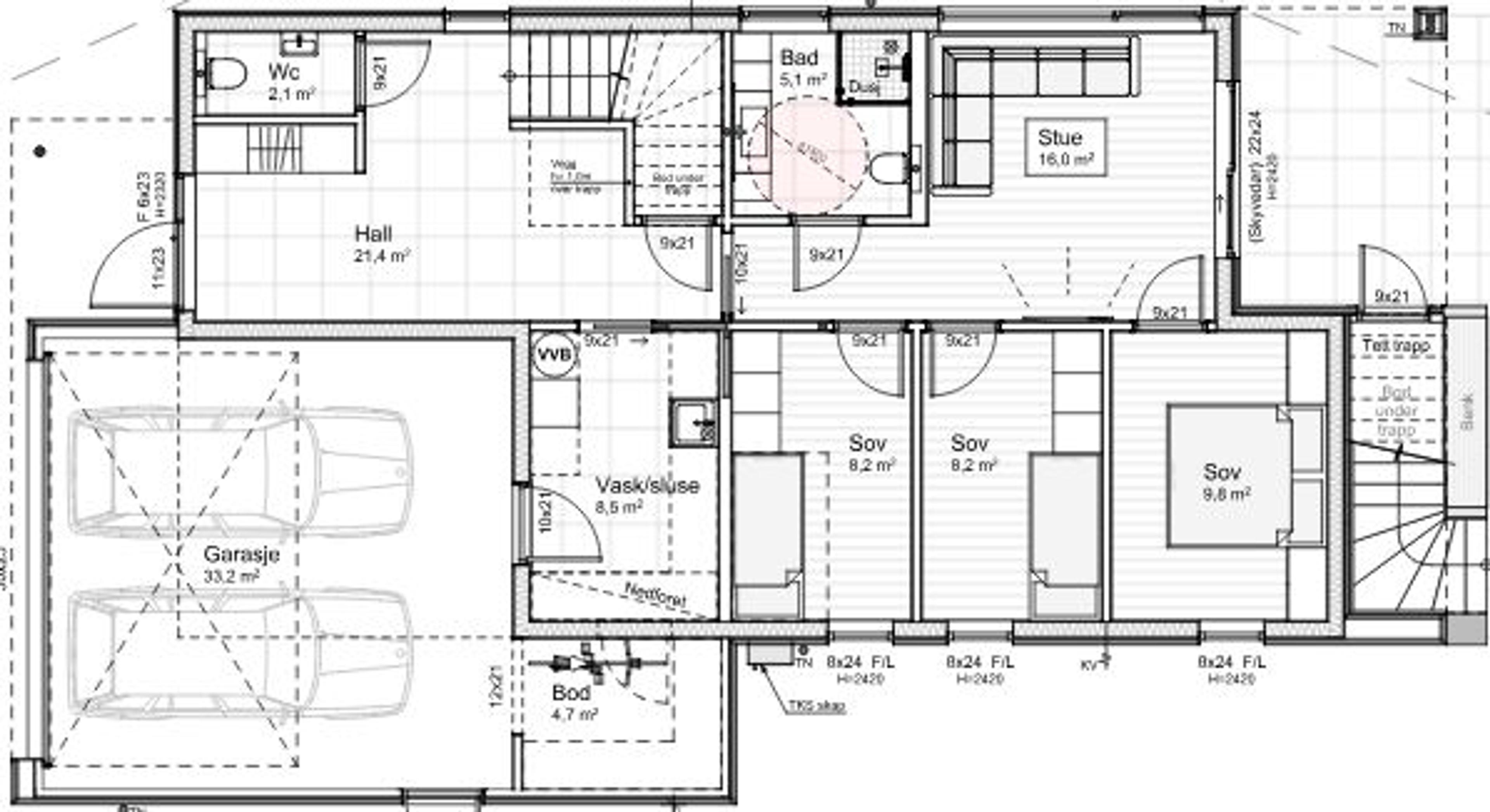
I Tastavollen skal vi i Blink Hus bygge en flott, arkitekttegnet enebolig. Boligen er innholdsrik med bl.a. 4 soverom, 3 stuer, 2 bad, gjestetoalett og vaskerom og god lagring/bodplass. Dobbel garasje med bod. Stue og kjøkken i 2. etasje med høyt under taket og store vindusflater. Fra stue/kjøkken er det utgang til balkong, med utvendig trapp ned til hagen. Hoved soverom med garderobe og bad, og flott utsikt.
Boligen leveres med gode kvaliteter, og god nyboligstandard. Utvendig leveres ytterkledning impregnert og fabrikkbehandlet. Aluminiums bekledde vinduer, og flat/slett moderne takstein. Innvendig leveres Sigdal kjøkken med hvitevarer, 1 stavs parkett, innvendig trapp med eiketrinn, fliser på bad, vask og hall med gjestetoalett. Vannvarme i gulv på beboelsesrom i 1. etasje, samt på bad i 2. etasje. Vifte-/varmekonvektor i stue/kjøkken. Mulighet for luft til vann varmepumpe, evt. ildsted/peis.
BRA
223,4 m2 inkl. garasje (190,2 m2 ekskl. garasje).
Tomt
Ca. 580 m2
Betaling ved innflytting.
Blink Hus står for lokal kvalitet. I 2024 hadde vi landets mest fornøyde kunder i prosjektmarkedet.
Interessert? Ta kontakt for mer informasjon!


Froastølveien 9, Stavanger


Ryggleet 1Randaberg


Langflåtveien 26,Stavanger