Nøtterøy – Herskapelig hus
Nøkkelinformasjon
Laster pris
Soverom
Grunnflate (BYA)
Bruksareal (BRA)
Primærrom (P-rom)
Største lengde
Største bredde
Klimafotavtrykk
Antall tonn CO2e
CO2e pr BTA
Den enkle verdigheten i arkitekturen, med liggende paneler inspirert av vestlandsk byggeskikk og tidlige funkishus, appellerer til deg som ønsker å både omfavne omgivelsene og ha et tilbaketrukket tilfluktssted.
Klassisk og herskapelig
Nøtterøy kombinerer klassisk villaarkitektur fra tidlig 1900-tallet med moderne tilpasninger. Den åpne førsteetasjen binder sammen huset og hagen, og gir et romslig og innbydende miljø for å ta imot gjester. Samtidig fungerer huset godt i hverdagen, med hyggelige og praktiske rom i andre etasje. Arkitekturen til Nøtterøy uttrykker en enkel verdighet, som kan sees gjennom bruken av liggende panel. Dette estetiske valget kan henvise til både vestlandsk byggeskikk og tidlig funkishus. Liggende paneler gir en strukturert og ryddig fasade samtidig som det tilfører en varm og organisk karakter til bygningen.
Funksjonell og åpen planløsning
Nøtterøy har en flott planløsning som tilfredsstiller både praktiske og komfortbehov. I første etasje har du en åpen stue- og kjøkkenløsning som gir en luftig og romslig følelse, samtidig som det legger til rette for en sosial atmosfære. Det gir deg mulighet til å være vertskap for gjester mens du tilbereder maten. To utganger til uteplassen og hagen gir praktisk tilgang til utendørsområdet. Dette åpner opp for utendørs underholdning, avslapning og muligheten til å nyte naturen. I tillegg har du et praktisk vaskerom og toalett i samme etasje.

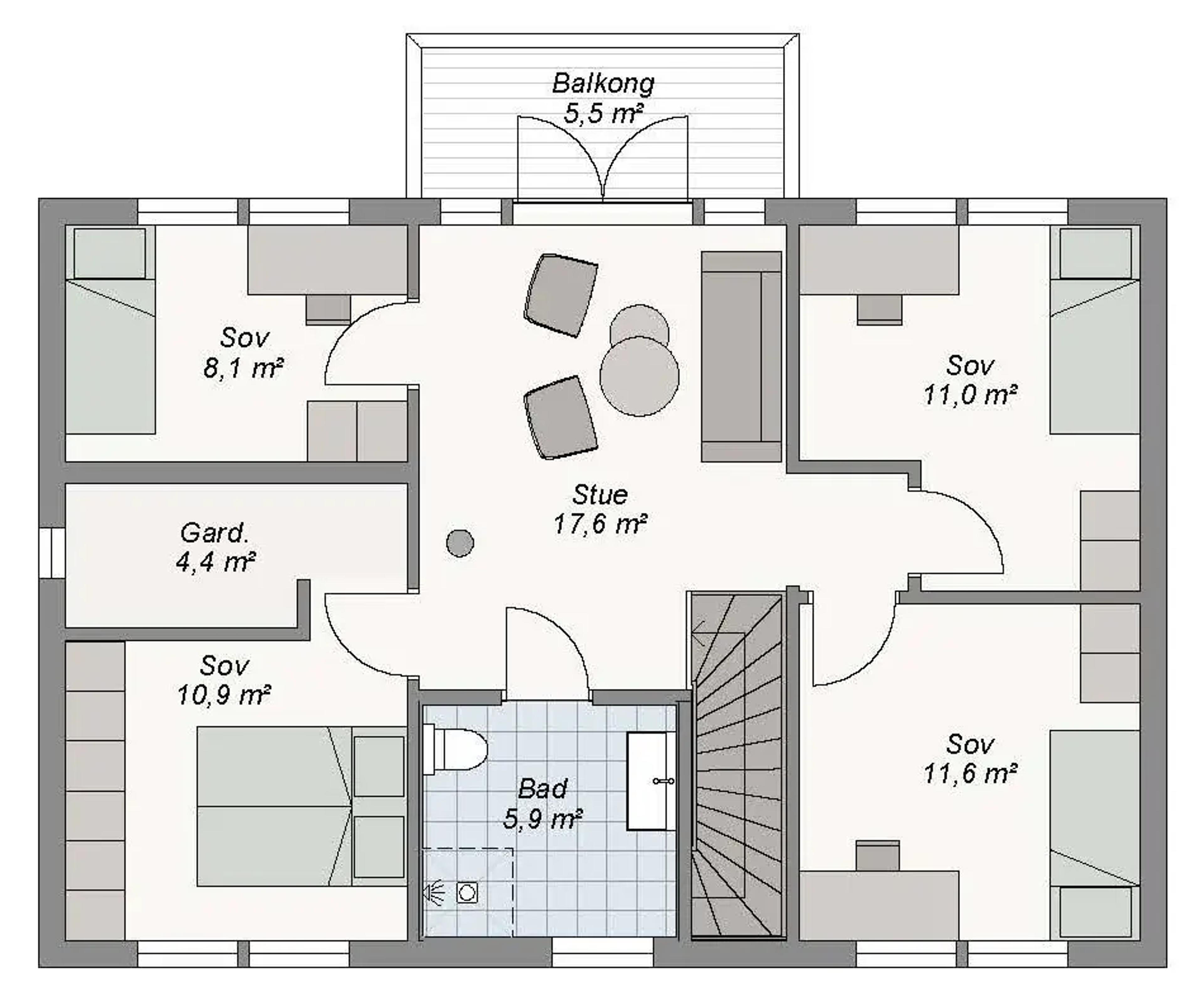
I andre etasje kommer du opp til en ekstra stue med utgang til balkong. Å ha en ekstra stue i andre etasje gir fleksibilitet og muligheten til å skape separate soner for avslapning og underholdning. Balkongen gir deg også muligheten til å nyte utsikten og frisk luft. Fire soverom gir god plass til familie, gjester eller bruksområder som hjemmekontor eller hobbyrom. Hovedsoverommet med eget walk in-closet gir en privat og luksuriøs følelse. I samme etasje har du også et bad som er lett tilgjengelig fra alle rommene. Husk at du kan alltid tilpasse planløsningen for å møte dine spesifikke behov og ønsker.
Nøtterøy er designet for de som ønsker å åpne opp for omgivelsene og nyte naturen rundt seg. Den åpne førsteetasjen, som binder sammen huset og hagen, legger til rette for en sømløs overgang mellom innendørs og utendørs liv. Dette kan skape en følelse av harmoni og sammenheng med omgivelsene. Boligen er også tilpasset for å kunne trekke seg tilbake for privatliv og ro i hverdagen med de praktiske og hyggelige rommene i andre etasje.
Plan- og fasadetegninger:
Ønsker du en annen plantegning?
Modellen kan tilpasses dine behov, og både dimensjoner, rom og planløsning kan endres slik du vil ha det.





