Hopp til hovedinnhold
1 / 0
Bjørndalåsen - Etne- Bjørndalen Terrasse Tomt 3

Bjørndalåsen Sande- 7 Moderne eneboliger med fantastiske sol- og utsiktsforhold

Bjørndalåsen terrasse 3077 Sande
Pris fra
9 980 000 kr
Omkostninger
64 585 kr
Totalpris
10 044 585 kr
Jan Erik Møien
Selger
Prosjektet bygges av

Blink Hus Sigdal

Velkommen til Blink Hus Sigdal – din lokale boligbygger med solid erfaring og ekte håndverkskvalitet! Enten du har en tomt og drømmer om å bygge nytt, ser etter den perfekte tomten, eller ønsker et nøkkelferdig prosjekt, er vi her for å gjøre boligdrømmen din til virkelighet. Med over 40 års erfaring og en sterk lokal forankring hjelper vi deg gjennom hele prosessen – fra idé til ferdig hjem. Vi er "Lokal Kvalitet"!

Gå til forhandlersiden
Nytt flaggskip fra Blink Hus- Et unikt strømlinjeformet funkishus med fantastisk takterrasse velegnet for hele familien i en kompakt og arealeffektiv bolig.

Prosjektfase

vår 2025
Planlegging
Vår 2025
Salgsstart
sommer/høst 2025
Byggestart
vår/sommer 2026
Overtakelse

Nøkkelinfo

Boligtype

Enebolig

Eierform

Selveier

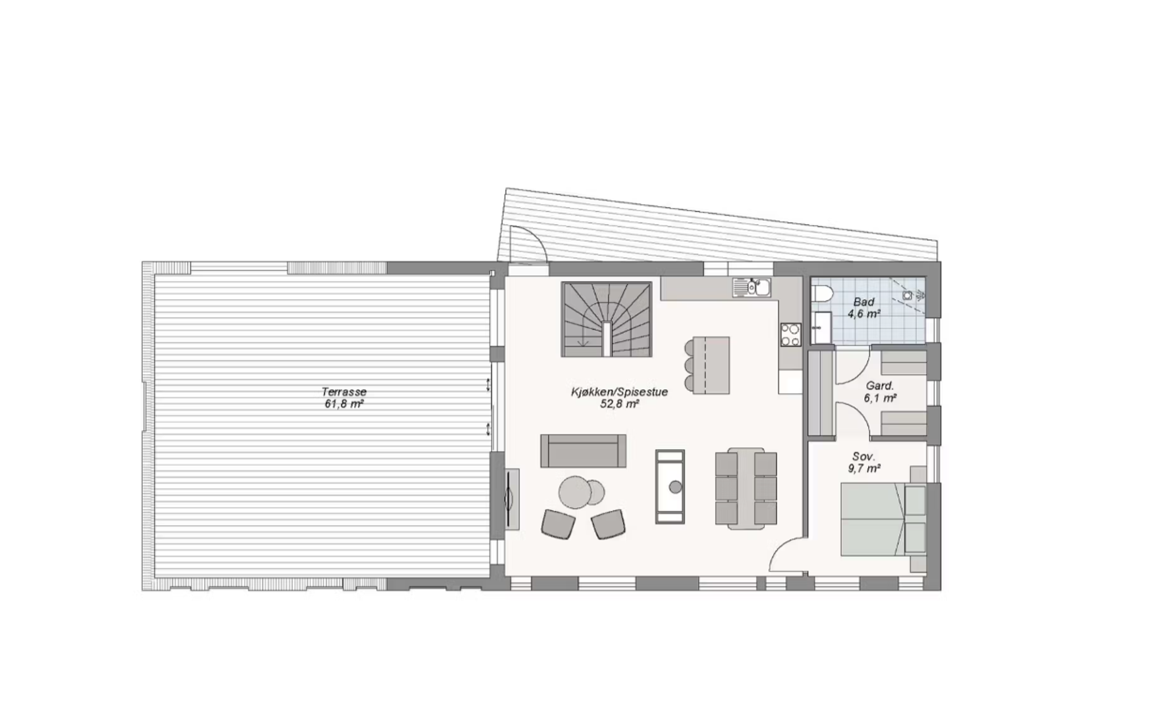
Soverom

4

Bad

2

Etasjer

2

Grunnflate

159 m² (BYA)

Bruksareal

158 m² (BRA)

Tomteareal

606

Største lengde

19.6 m

Største bredde

8.1 m

Energimerking

B

Fasiliteter

  • Garasje/P-plass
  • Utsikt
  • Peis/Ildsted
  • Balkong/Terrasse

Stue/kjøkken er løftet på øverste plan hvor man har god utsikt og godt med lys. Direkte utgang til takterrassen gir mulighet til å nyte utendørsområdene og skape et harmonisk forhold mellom innendørs og utendørs. Plasseringen av hovedsoverommet med egen walk in-garderobe og bad på øverste plan gir en følelse av luksus og komfort.

Med boligens utforming skiller den seg godt ut samtidig som det trer inn i terrenget og ikke virker ruvende. Opplev panoramautsikt og sol hele dagen på den store takterrassen med direkteadkomst fra stue.

Om nabolaget

Bjørndalåsen er et nytt og spennende boligområdet i åsen over anerkjente Jarlsberg Brygge i Sande.

Med uslåelig sol- og utsiktsforhold ligger alt til rette for rekreasjon og fritid for hele familien. Den aktive og urbane landsbyen har nærhet til alt fra anerkjente idrettsarenaer til marka og vakre strandlinjen langs fjorden i sandebukta med aktiviteter for store og små hele året.

Området ligger i underkant av 3 kilometer til Svelvik Barneskole og underkant av 5 kilometer til Sande ungdomsskole og ca 2,5 kilometer fra nærmeste videregående skole.

Fjord, sjø, utsikt, friluftsliv, lek og rekreasjon hele året for hele familien.

Plantegninger

Leveransebeskrivelse

Andre enheter til salgs i Bjørndalåsen

Meld interesse

Din kontaktinformasjon

Din melding

Ved å sende inn skjema opprettes det en brukerprofil på blink-hus.no, og dine opplysninger lagres i vår digitale løsning. Utfyllende informasjon om behandlingen og hvordan du kan slette din profil finner du i vår personvernerklæring. Blink Hus vil sende deg nyhetsbrev basert på ditt kundeforhold hos oss. Dersom du ønsker å reservere deg mot nyhetsbrev, gjør du det enkelt ved å krysse av nedenfor.