Beskrivelse
Velkommen til attraktivt boligprosjekt i Prestfoss!
Nå skal det bygges 2 nye, moderne og svært familievennlige halvpart av tomannsboliger, rolig, barnevennlig og attraktivt beliggende, like utenfor Prestfoss sentrum! Boligene blir tidløse og klassiske i utforminger og fargevalg.
Boligene er forhåndsgodkjent for finansiering i Husbanken, som gir svært gode betingelser. Husbankrenten ligger til enhver tid om lag 1% lavere enn ordinær boliglånsrente. Det betyr at man får mye mindre rentekostnader! Vi bistår i søknadsprosessen mot husbanken, og kan også være behjelpelige med å finne løsninger knyttet til egenkapital.
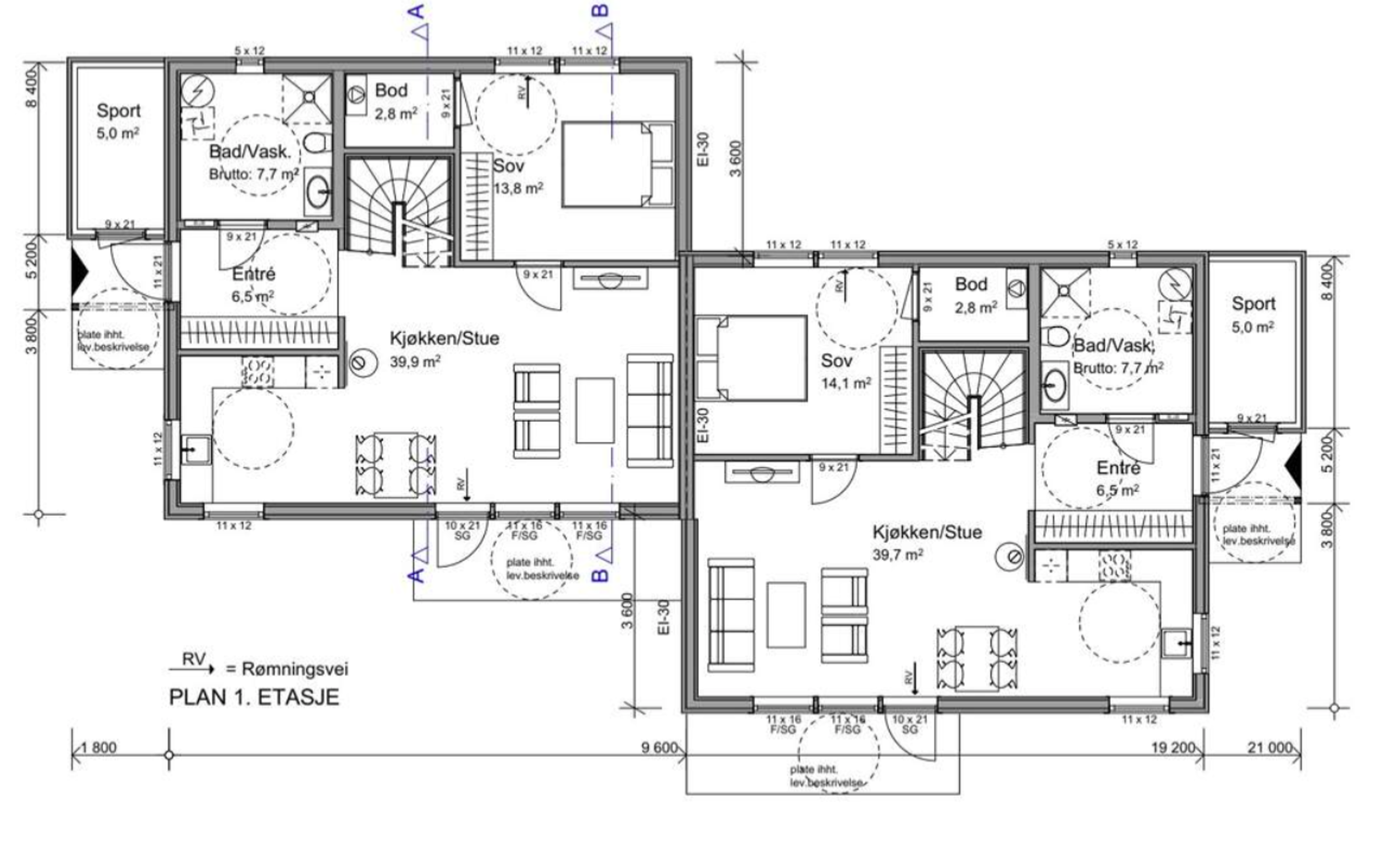
Boligene får en familievennlig planløsning, og vil inneholde
1. etasje: Entré, bad/vaskerom, kjøkken med moderne åpen løsning mot stuen, hovedsoverom med direkte adkomst til bod/garderoberom. Sportsbod med utvendig adkomst ved inngangspartiet.

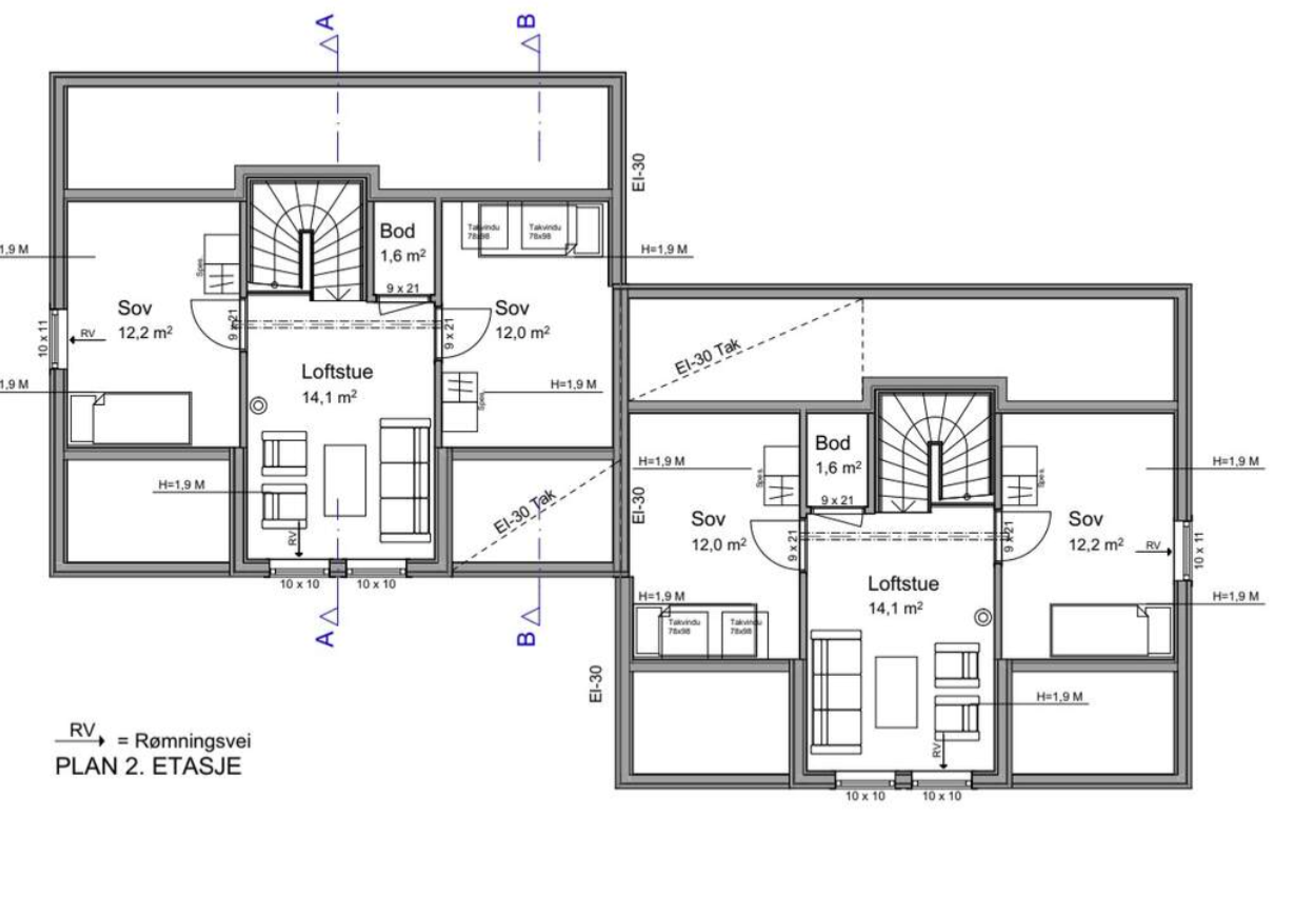
2. etasje: Loftstue, 2 soverom og bod.

Beliggenhet
Kringstadmoen har en familievennlig og sentral beliggenhet like utenfor Prestfoss sentrum, i Sigdal. Dette er et rolig og trivelig område, barnevennlig med nærhet til både barnehage, barneskole og aktiviteter.
Svært sentral beliggenhet til butikker og dagligvare, hvor Sigdalsenteret ligger innenfor ca. 4 minutter med bil. Åmot sentrum kan by på et variert utvalg av servicetilbud. I praktisk gangavstand på ca. 700 meter finnes det bussholdeplass.
Prestfoss skole (1-7 kl.) og Prestfoss barnehage (1-5 år) ligger begge innenfor ca. 10 minutters gange fra eiendommen. Sigdal ungdomsskole (8-10 kl.) ligger også innenfor ca. 15. minutters gangavstand. Skoler og barnehager byr på lekeplasser og aktiviteter, samtidig som det finnes sandvolleyballbane, fotballbinge, skaterampe og idrettsanlegg innenfor gangavstand.
Fra eiendommen er det også nærhet til fine tur- og rekreasjonsmuligheter sommer som vinter, med gode muligheter for både bading og fisking samt turer både på ski og beina. Nærhet til yrende båtliv på Soneren, sommerstid. Her finnes det også en lang, flott badestrand. På vinterstid prepareres det milevis med skiløyper både på Nerstad og på Simostranda.
Fra boligen er det ca. 50 minutter med bil til både skitrekk på Tempelseter, Haglebu alpinanlegg og Norefjell Alpinsenter. Tempelseter Skisenter har en T-krokheis på ca. 500 m. Bakken er veldig fin både for nybegynnere og barn. Større bakker finner du på Haglebu og Norefjell. Norefjell alpinsenter kan by på over 25 km preparerte alpinløyper fordelt på 29 nedfarter, i ulike vanskelighetsgrader.
Kun en kort kjøretur fra eiendommen, ligger Blaafarveværket og Koboltgruvene som et 8 km langt museum. Museet er et av Norges best besøkte turistattraksjoner, med en blanding av kunst, kultur og natur. Museet kan deriblant friste med nye kunstutstillinger hvert år, barnas bondegård og guidede gruveturer i gruvemiljø fra 1800-tallet. Museet byr også på tre stemningsfulle spisesteder hvor det serveres hjemmelaget mat, og i sommerhalvåret arrangeres det også gratis søndagskonserter.
Garasje/parkering
Parkering på sameiets gårdsplass.
Organisasjonsform
Boligsameiet vil bli organisert som et eierseksjonssameie etter Eierseksjonsloven. Det er utarbeidet vedtekter som regulerer forholdet mellom seksjonene.
Prisinformasjon
Selger forbeholder seg retten til å endre priser og betalingsbetingelser uten forvarsel for alle usolgte enheter gjennom hele salgsprosessen. Det tas forbehold om feil i prislisten.
Betalingsbetingelser
10 % av kjøpesummen (totalpris) forfaller til betaling ved kontrakt. Dette må ikke være bundet kapital. Resterende del av kjøpesummen, samt omkostninger, forfaller til betaling ved overtagelse. Eventuelle tilleggsbestillinger betales fortløpende og etter nærmere avtale med selger, senest innen overtagelse.
Garanti
Handelen reguleres av Bustadoppføringslova eller avhendingslova. Selger skal stille garanti etter Bustadoppføringslova § 12. Plikten til å stille garanti gjelder også dersom avtalen inneholder forbehold. Garantien skal gjelde fra tidspunkt for avtaleinngåelse og frem til fem år etter overtagelse. Garantien skal tilsvare minst 10 % av kjøpesummen frem til overtagelse, og minst 5 % etter overtagelse.
Ved 10 % innbetaling i forbindelse med kontrakt vil påløpte renter tilfalle kjøper, dersom rentene til sammen ikke overstiger ½ rettsgebyr, blir renter ikke utbetalt. Dersom selger stiller selvskyldnergaranti etter Bustadoppføringslova § 47 har selger rett til å disponere over alle innbetalinger av kjøpesummen fra kjøper. Når slik garanti blir stilt har ikke kjøper krav på renter av 10 % innbetalt beløp. Kjøper er ikke forpliktet til å betale noen del av kjøpesummen før selger har stilt garanti ifølge Bustadoppføringslova § 12. Loven kan i sin helhet fås ved henvendelse til megler. Kontrakter vil til enhver tid følge gjeldende regelverk.
Salgsbetingelser og kjøpetilbud
Kjøper plikter å ha gjort seg kjent med komplett salgsinformasjon: Salgsprospekt, viktig salgsinformasjon, leveransebeskrivelse, prisliste og standard kjøpekontrakt med alle vedlegg før avtale om kjøp inngås.
Tomt
Boligsameiets tomt er på ca. 2 040 m².
Tomten blir fellesareal, men hver bolig får naturlig tilhørende hagedel.
Fellesarealet blir opparbeidet med parkeringer samt plass for renovasjon og postkasser.
Det kan bli foretatt grensejusteringer og eventuell sammenslåing/deling i forbindelse med utbyggingen. Tomtens areal etter evt. justeringer er ennå ikke fastsatt. Selger forbeholder seg retten til å bestemme endelig utforming og materialvalg.
Oppvarming
Oppvarming med strøm og ved. Det leveres Dovre peisovn i stue. Vi ber interessenter gjøre seg kjent med hvilke boligrom som eventuelt ikke har elektrisk oppvarming.
Energimerking
Denne bolig er energimerket. På en skala fra A til G, der A er best, har denne bolig oppnådd rød B (en normalbolig vil gjerne ligge i området C-F). Kopi av energiattest ligger vedlagt i salgsoppgaven.
Sentrale lover
Boligene selges i henhold til Bustadoppføringslova som regulerer kjøpers (forbrukers) rettigheter og plikter ved avtale om oppføring av bolig og kjøp av fast eiendom der bygningen ikke er fullført når avtalen inngås. Ved salg til profesjonell/investor eller aksjeselskap legges Avhendingslovens bestemmelser til grunn. Når boligene er ferdigstilt vil også avhendingslova legges til grunn. Selger kan velge å selge etter Bustadoppføringslova.
For øvrig gjelder Lov om eierseksjoner for eierseksjonssameiet og driften av dette. Det forutsettes at skjøtet tinglyses på ny eier.
Vedtekter
I forbindelse med seksjoneringen vil det fastsettes vedtekter for sameiet. Utkast til vedtekter ligger vedlagt i salgsoppgaven.
Adgang til utleie
Bolig med en boenhet som fritt kan leies ut i sin helhet. Deler av boligen kan også leies ut, forutsatt at det er en del av boligens godkjente hoveddel med rom godkjent for varig opphold og at den utleide delen ikke er adskilt som en selvstendig boenhet.
Fremdriftsplan og ferdigstillelse
Byggestart forutsetter:
- Tilstrekkelig antall forhåndssalg, 1. stk bolig.
- At igangsettelsestillatelse, i samsvar med selgers foreliggende planer for eiendommen, blir gitt.
- At detaljprosjekteringen ikke avdekker forhold som vesentlig fordyrer eller umuliggjør planlagt utvikling av eiendommen.
Selger tar forbehold om igangsettingstillatelse for omsøkt prosjekt. Det er ikke gitt igangsettingstillatelse for prosjektet pt. Dersom igangsettingstillatelse ikke er gitt innen 12 mnd. etter budaksept har partene rett til å tre fra avtalen, uten noen økonomiske forpliktelser overfor hverandre.
Stipulert overtagelse er ca. 10 måneder etter byggestart.
Det gjøres oppmerksom på at utomhusanlegg og adkomstveier vil kunne være uferdige ved overlevering av boligen. Kjøper er innforstått med, og aksepterer de ulempene som naturlig følger med under gjennomføringen av byggeprosjektet, også etter at innflytting har funnet sted. Utomhusarealene blir ferdigstilt så fort årstid og fremdrift tillater. Det vil således kunne være utomhusarbeider som gjenstår etter at leilighetene er innflyttet.
Kjøkken
Det leveres kjøkken fra Sigdal kjøkken. Det medfølger integrerte hvitevarer, med unntak av frittstående kjøleskap.
Bad
Bad får fliser på gulv med varmekabler og baderomsplater på vegg.
Andre oppholdsrom
Oppholdsrom; stue, kjøkken, soverom, bod og loftstue får malte overflater og 3-stavs hvitpigmentert parkett på gulv.
Entré får fliser på gulv med varmekabler.