EtneUnikt funkishus
Nøkkelinformasjon
Laster pris
Soverom
Grunnflate (BYA)
Bruksareal (BRA)
Primærrom (P-rom)
Største lengde
Største bredde
Klimafotavtrykk
Antall tonn CO2e
CO2e pr BTA
Boligens konsept kommer fra terrengtilpasning hvor man ønsket en glidende overgang fra øverste plan til inngangsplanet, og skape en harmonisk forbindelse mellom huset og det omkringliggende landskapet.
Helt unik fasade
Fasadedesignet med det flytende elementet som binder etasjene sammen, gir en visuell kontinuitet og bidrar til å skape en helhetlig og sammenhengende struktur. Ved å begrense åpningene i fasaden til kun inngangsdør og garasje, oppnår man et mer strømlinjeformet og minimalistisk uttrykk. Med dette grepet sitter huset godt i omgivelsene og man har fått til god tilknytning til mulige utearealer oppe og nede.
Huset tar hensyn til formen på tomten for å skape en naturlig og sømløs tilpasning mellom boligen og terrenget. Ved å tilpasse boligen til terrenget kan man utnytte landskapets egenskaper til å oppnå bedre eksponering for sollys og muligheten til å skape naturlig ventilasjon gjennom strategisk plasserte åpninger og vinduer. Terrengtilpasning kan også bidra til å innlemme boligen i omgivelsene og oppnå en mer tiltalende estetikk.
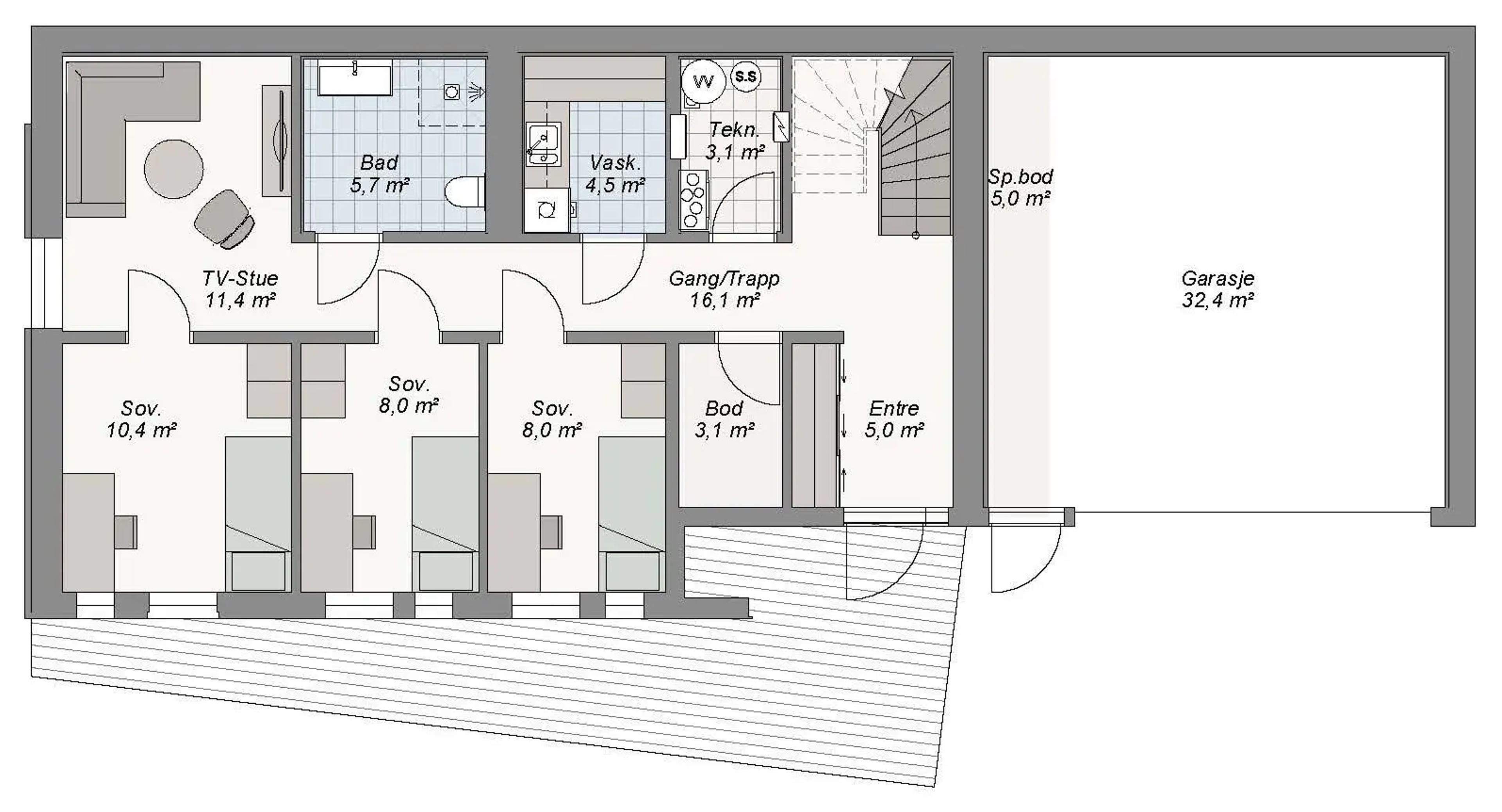
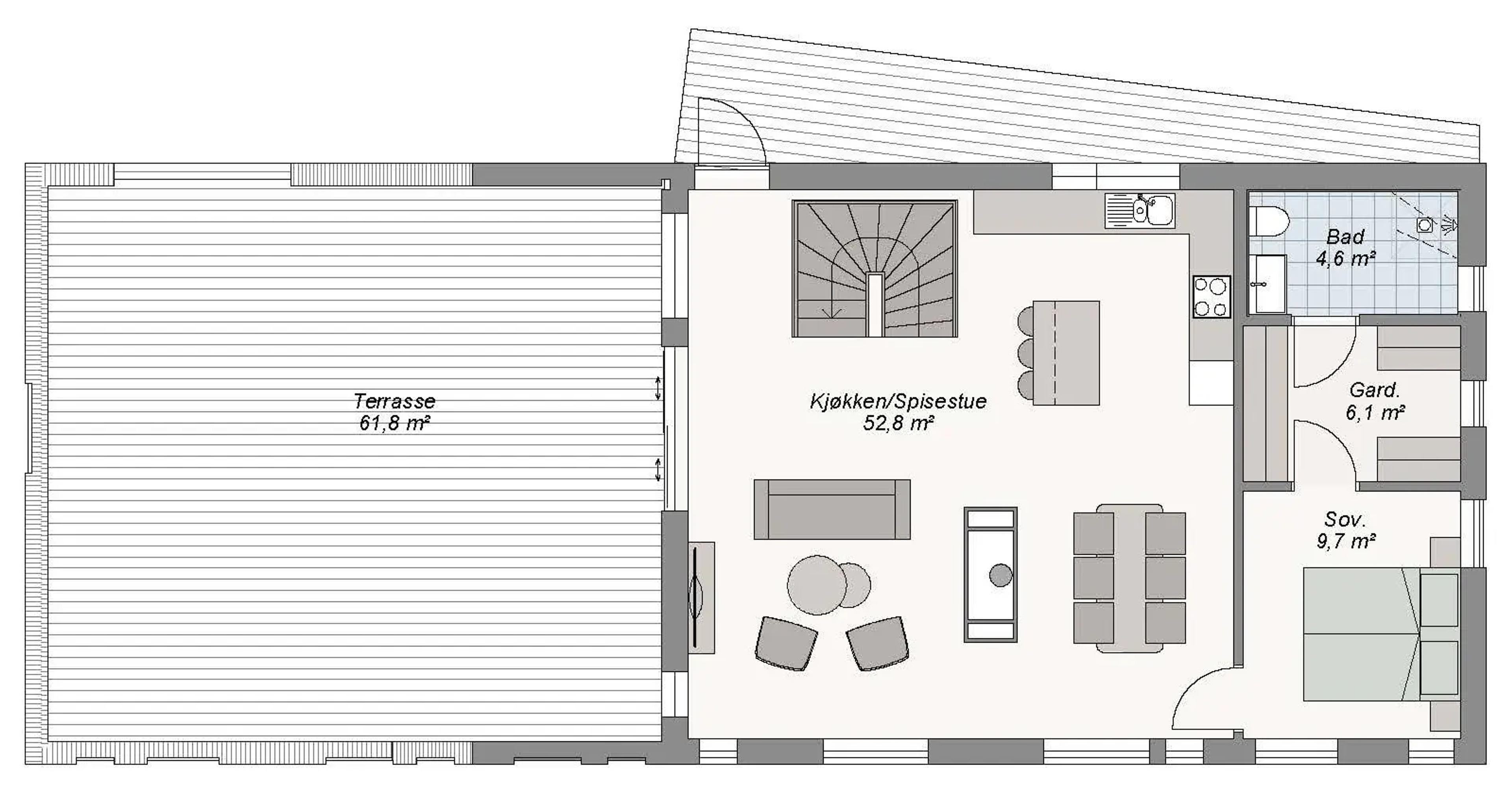
Åpen og funksjonell planløsning

Stue/kjøkken er løftet på øverste plan hvor man har god utsikt og godt med lys. Direkte utgang til takterrassen gir mulighet til å nyte utendørsområdene og skape et harmonisk forhold mellom innendørs og utendørs. Plasseringen av hovedsoverommet med egen walk in-garderobe og bad på øverste plan gir en følelse av luksus og komfort.
Plan- og fasadetegninger:
Ønsker du en annen plantegning?
Modellen kan tilpasses dine behov, og både dimensjoner, rom og planløsning kan endres slik du vil ha det.





