FredrikstadModerne funkisbolig
Nøkkelinformasjon
Laster pris
Soverom
Grunnflate (BYA)
Bruksareal (BRA)
Primærrom (P-rom)
Største lengde
Største bredde
Klimafotavtrykk
Antall tonn CO2e
CO2e pr BTA
Et moderne funkishus med stor terrasse, integrert garasje og stramme linjer. Fredrikstad er en av våre mest populære hus, og ble vår nest mest solgte bolig i 2021 og 2022.
Luftig hovedetasje med god utsikt
Fasaden til dette funkishuset er preget av rene og stramme linjer som gir en umiddelbar følelse av moderne stil og eleganse. Med store vinduer og en åpen stue- og kjøkkenløsning i andre etasje får du mye naturlig lys og en fantastisk utsikt. Den store og delvis overbygde terrassen strekker seg i en L-formasjon rundt huset, og fungerer som en forlengelse av kjøkken og stue. Med en perfekt blanding av åpenhet og privatliv, er terrassen et ideelt sted å nyte den friske luften og utsikten.
Integrert garasje som del av husets minimalistiske utseende
I første etasje er husets andre stue. Også her har du store vinduer som strekker seg helt ned til gulvet, og gir rommet en lys og luftig atmosfære. Den integrerte garasjen er en sømløs del av husets design og opprettholder den stramme estetikken. Den gir en praktisk og sikker parkering for bilen din, samtidig som du enkelt kan komme og gå uten å bekymre deg for vær og vind.
Praktiske løsninger for en aktiv familie
Fredrikstad er en perfekt bolig for en aktiv familie som ønsker praktiske løsninger og god plass til alle. Med to stuer og fire soverom, har alle i familien god plass til å slappe av og ha sine egne aktiviteter. Walk in-closet og eget bad på hovedsoverommet gir ekstra komfort og privatliv.
Dette er en populær bolig blant mange, og med sitt funksjonelle design og praktiske løsninger, passer den perfekt for en moderne familie.

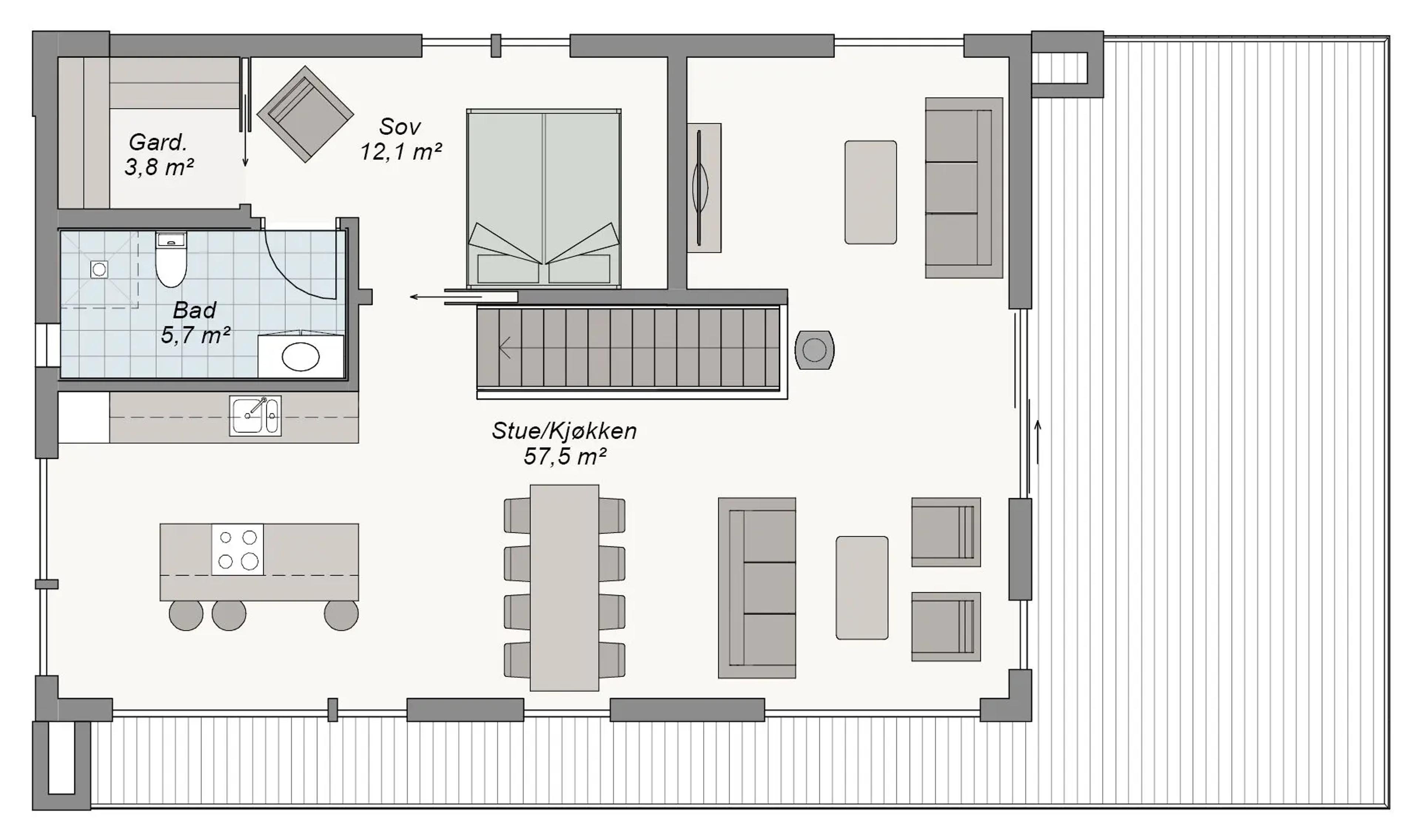
Plan- og fasadetegninger:
Ønsker du en annen plantegning?
Modellen kan tilpasses dine behov, og både dimensjoner, rom og planløsning kan endres slik du vil ha det.





