Hopp til hovedinnhold
1 / 0

GODKJENT FOR HUSBANKFINANSIERING! Moderne familiebolig i Vestfossen – sentral beliggenhet

Bueveien 1A 3320 Vestfossen
Pris fra
5 990 000 kr
Omkostninger
30 651 kr
Totalpris
6 020 651 kr
Jan Erik Møien
Selger
Prosjektet bygges av

Blink Hus Sigdal

Velkommen til Blink Hus Sigdal – din lokale boligbygger med solid erfaring og ekte håndverkskvalitet! Enten du har en tomt og drømmer om å bygge nytt, ser etter den perfekte tomten, eller ønsker et nøkkelferdig prosjekt, er vi her for å gjøre boligdrømmen din til virkelighet. Med over 40 års erfaring og en sterk lokal forankring hjelper vi deg gjennom hele prosessen – fra idé til ferdig hjem. Vi er "Lokal Kvalitet"!

Gå til forhandlersiden
Velkommen til Bueveien 1A – en enebolig med gjennomtenkte løsninger, et tidløst uttrykk og en attraktiv, barnevennlig beliggenhet i hjertet av Vestfossen. Her får du en ny og energieffektiv bolig med Husbankgodkjenning, lave omkostninger og trygge kvaliteter som varer.

Prosjektfase

Planlegging
Desember 2025
Salgsstart
Q2 2026
Byggestart
Ca. 10 mnd etter byggestart
Overtakelse

Nøkkelinfo

Boligtype

Enebolig

Soverom

4

Bad

2

Etasjer

2

Bruksareal

130 m² (BRA)

Internt bruksareal

124 m² (BRA-i)

Eksternt bruksareal

6 m² (BRA-e)

Energimerking

B

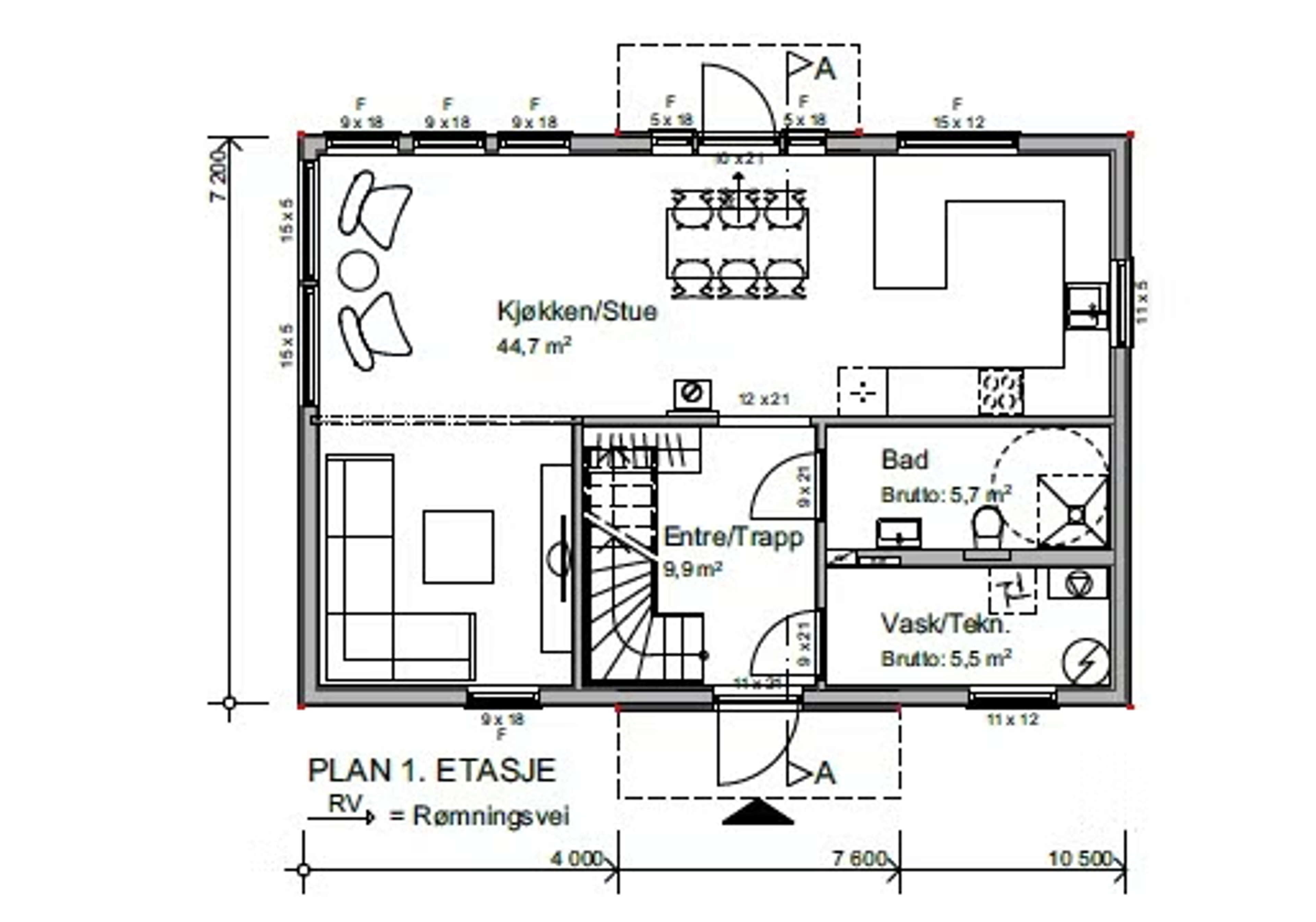
Bueveien 1A er en ny, prosjektert enebolig med stilren arkitektur, gode materialvalg og løsninger som gjør hverdagen både enkel og komfortabel. Boligen får en flott uteplass, store vindusflater som slipper inn rikelig med dagslys, og et moderne interiør som gir et helhetlig og harmonisk inntrykk.

Den praktiske planløsningen er perfekt for familielivet:
I andre etasje samles fire soverom og en hyggelig loftstue – et ideelt oppholdsområde for barn og ungdom. I første etasje får du en romslig stue med åpen løsning mot kjøkkenet, et bad i hver etasje og et praktisk vaskerom. Løsningene er gjennomtenkte fra A til Å, og gir fleksibilitet både for småbarnsfamilier og for de som ønsker god plass til gjester og hjemmekontor.

Beliggenhet

Adressen byr på en attraktiv, rolig og barnevennlig plassering sentralt i Vestfossen. Her har du kort vei til alt en moderne familie trenger:

  • barnehage og skole
  • tog og buss
  • dagligvare- og servicetilbud
  • flotte turmuligheter

Dette gjør området til et svært godt valg for både etablerere og barnefamilier som ønsker en trygg og praktisk hverdag.

Husbankfinansiering

Prosjektet er godkjent for Husbankfinansiering med markedets laveste rente på hele 90 % av kjøpesummen – en unik mulighet for å sikre seg lavere bokostnader og forutsigbar økonomi.

Fordeler ved ny bolig

  • 5 års garanti
  • Lave omkostninger
  • Alt er nytt og moderne
  • Energivennlig og bygd etter dagens standarder

Garasje og parkering

Det er parkering på egen gårdsplass, med gode muligheter for tilrettelegging av ladepunkt for elbil ved behov.

Oppføring og betalingsinformasjon

Boligen oppføres av Blink Hus Sigdal AS, og leveres etter gjeldende standarder og beskrivelser i prosjektets leveransebeskrivelse.

Selger forbeholder seg retten til å endre både priser og betalingsbetingelser uten forvarsel for alle usolgte enheter gjennom salgsprosessen. Det tas forbehold om eventuelle feil i prisliste.

Ved kontraktsinngåelse forfaller 10 % av kjøpesummen til betaling.
Påløpte renter tilfaller kjøper dersom rentebeløpet overstiger et halvt rettsgebyr.
Resterende kjøpesum inkl. omkostninger og valgte tilvalg innbetales før overtakelse.

Salgsbetingelser

Kjøper plikter å sette seg inn i komplett salgsinformasjon:
Salgsprospekt, viktig salgsinformasjon, leveransebeskrivelse, prisliste og standard kjøpekontrakt med vedlegg.

Fremdriftsplan

Byggestart er estimert til Q2 2026, og boligen er forventet innflytningsklar ca. 10 måneder etter byggestart.

Tomten leveres grovplanert og klargjort for tilsåing. Det kan forekomme at enkelte utomhusarbeider ferdigstilles etter overtakelse, avhengig av årstid og fremdrift.

Plantegninger

Leveransebeskrivelse

Meld interesse

Din kontaktinformasjon

Din melding

Ved å sende inn skjema opprettes det en brukerprofil på blink-hus.no, og dine opplysninger lagres i vår digitale løsning. Utfyllende informasjon om behandlingen og hvordan du kan slette din profil finner du i vår personvernerklæring. Blink Hus vil sende deg nyhetsbrev basert på ditt kundeforhold hos oss. Dersom du ønsker å reservere deg mot nyhetsbrev, gjør du det enkelt ved å krysse av nedenfor.