Hopp til hovedinnhold
1 / 0

GODKJENT FOR HUSBANKFINANSIERING! Moderne enebolig i Krokstadelva – svært attraktiv beliggenhet

Lindeveien 31A 3055 Krokstadelva
Pris fra
8 990 000 kr
Omkostninger
51 386 kr
Totalpris
9 041 386 kr
Haakon Skredsvig Flatin
Selger
Prosjektet bygges av

Blink Hus Sigdal

Velkommen til Blink Hus Sigdal – din lokale boligbygger med solid erfaring og ekte håndverkskvalitet! Enten du har en tomt og drømmer om å bygge nytt, ser etter den perfekte tomten, eller ønsker et nøkkelferdig prosjekt, er vi her for å gjøre boligdrømmen din til virkelighet. Med over 40 års erfaring og en sterk lokal forankring hjelper vi deg gjennom hele prosessen – fra idé til ferdig hjem. Vi er "Lokal Kvalitet"!

Gå til forhandlersiden
Velkommen til Lindeveien 31A – en moderne og arkitektonisk gjennomført enebolig med integrert garasje, store vindusflater og en attraktiv beliggenhet midt i barnevennlige Krokstadelva. Her får du en ny, energieffektiv bolig med funksjonelle løsninger, stilrent design og Husbankgodkjent finansiering for tryggere økonomi.

Prosjektfase

Ferdig!
Planlegging
Nå!
Salgsstart
Sommer/høsten 2026
Byggestart
Ca. 10 mnd etter byggestart
Overtakelse

Nøkkelinfo

Boligtype

Enebolig

Eierform

Selveier

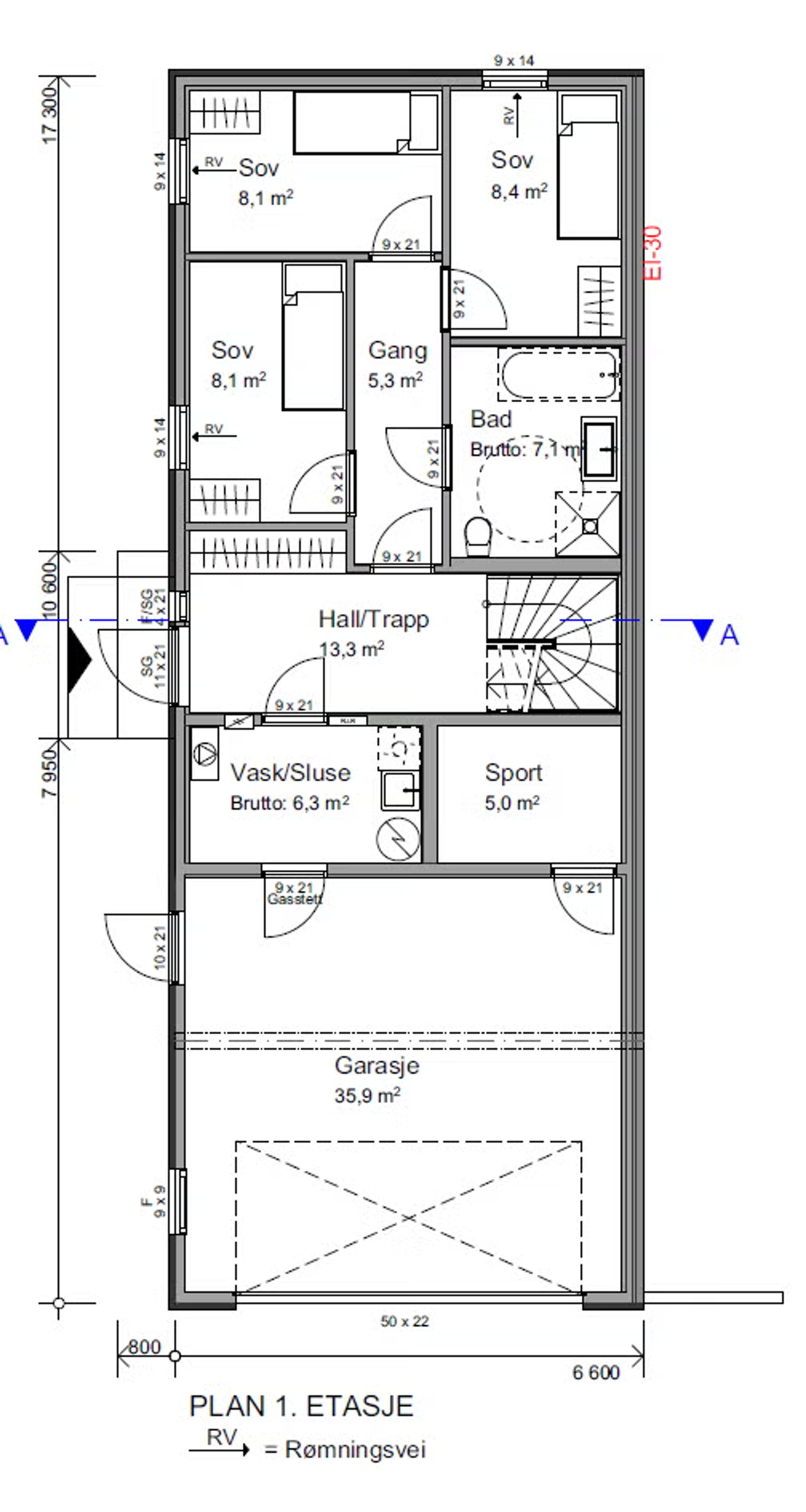
Soverom

4

Bad

2

Etasjer

2

Bruksareal

183 m² (BRA)

Internt bruksareal

142 m² (BRA-i)

Eksternt bruksareal

42 m² (BRA-e)

Terrasse/balkong

22 m² (TBA)

Energimerking

B

Soverom

4

Eierform

Selveier

Boligtype

Enebolig

Lindeveien 31A er en ny, prosjektert enebolig med moderne formspråk, store arkitektoniske vindusflater og en gjennomført kvalitet som gir et stilrent og tidløst helhetsinntrykk. Boligen byr på en romslig uteplass og gode solforhold, samtidig som interiøret preges av praktiske løsninger og god arealutnyttelse.

Planløsningen er skreddersydd for en aktiv familie, med fire soverom, romslige oppholdsrom, to bad, eget toalettrom og et praktisk vaskerom som ligger i direkte tilknytning til den integrerte garasjen. Her er det enkelt å kombinere hverdagslogistikk med komfort.

Attraktiv og barnevennlig beliggenhet

Eiendommen ligger i et etablert og etterspurt boligområde i Krokstadelva. Her har du kort vei til alt familien trenger:

  • barnehage og skole
  • buss og tog
  • dagligvare og servicetilbud
  • flotte turmuligheter

Dette gjør området både trygt og ideelt for barnefamilier som ønsker en praktisk hverdag og gode bomiljøkvaliteter.

Husbankfinansiering

Kjøp boligen med forhåndsgodkjent Husbankfinansiering med markedets laveste rente på hele 90 % av kjøpesummen gir svært gunstige og forutsigbare bo‑kostnader.

Fordeler ved ny bolig

  • 5 års garanti
  • Lave omkostninger
  • Alt er nytt, moderne og vedlikeholdsvennlig
  • Energivennlig bolig bygget etter TEK17
  • Godt inneklima og lave energikostnader

Garasje/parkering

Boligen leveres med integrert garasje og parkering på egen gårdsplass – praktisk og trygt året rundt.

Oppføring, betalings- og salgsbetingelser

Boligen oppføres i henhold til TEK17 og leveres av Blink Hus Sigdal AS, som sikrer trygg kvalitet og solid gjennomføring.

Selger forbeholder seg retten til å endre priser og betalingsbetingelser uten forvarsel. Det tas forbehold om feil i prisliste.

Ved kontraktsinngåelse forfaller 10 % av kjøpesummen til betaling. Påløpte renter tilfaller kjøper dersom beløpet overstiger et halvt rettsgebyr. Resten av kjøpesum med omkostninger og eventuelle tilvalg innbetales før overtakelse.

Kjøper skal sette seg inn i all salgsdokumentasjon: prospekt, viktig salgsinformasjon, leveransebeskrivelse, prisliste og kjøpekontrakt med vedlegg før avtale inngås.

Fremdrift og ferdigstillelse

Rammetillatelse er gitt 13.02.2024. Igangsettingstillatelse søkes ved kontrakt. Boligen estimeres ferdigstilt ca. 10 måneder etter byggestart.

Tomten leveres grovplanert og klargjort for tilsåing. Utomhusarbeider kan ferdigstilles etter innflytting, avhengig av årstid og fremdrift.

GODKJENT FOR HUSBANKFINANSIERING! Moderne enebolig i Krokstadelva – svært attraktiv beliggenhet | FINN eiendom

Lindeveien 31A er en ny, prosjektert enebolig med moderne formspråk, store arkitektoniske vindusflater og en gjennomført kvalitet som gir et stilrent og tidløst helhetsinntrykk. Boligen byr på en romslig uteplass og gode solforhold, samtidig som interiøret preges av praktiske løsninger og god arealutnyttelse.

Planløsningen er skreddersydd for en aktiv familie, med fire soverom, romslige oppholdsrom, to bad, eget toalettrom og et praktisk vaskerom som ligger i direkte tilknytning til den integrerte garasjen. Her er det enkelt å kombinere hverdagslogistikk med komfort.

Attraktiv og barnevennlig beliggenhet

Eiendommen ligger i et etablert og etterspurt boligområde i Krokstadelva. Her har du kort vei til alt familien trenger:

  • barnehage og skole
  • buss og tog
  • dagligvare og servicetilbud
  • flotte turmuligheter

Dette gjør området både trygt og ideelt for barnefamilier som ønsker en praktisk hverdag og gode bomiljøkvaliteter.

Husbankfinansiering

Kjøp boligen med forhåndsgodkjent Husbankfinansiering med markedets laveste rente på hele 90 % av kjøpesummen gir svært gunstige og forutsigbare bo‑kostnader.

Fordeler ved ny bolig

  • 5 års garanti
  • Lave omkostninger
  • Alt er nytt, moderne og vedlikeholdsvennlig
  • Energivennlig bolig bygget etter TEK17
  • Godt inneklima og lave energikostnader

Garasje/parkering

Boligen leveres med integrert garasje og parkering på egen gårdsplass – praktisk og trygt året rundt.

Oppføring, betalings- og salgsbetingelser

Boligen oppføres i henhold til TEK17 og leveres av Blink Hus Sigdal AS, som sikrer trygg kvalitet og solid gjennomføring.

Selger forbeholder seg retten til å endre priser og betalingsbetingelser uten forvarsel. Det tas forbehold om feil i prisliste.

Ved kontraktsinngåelse forfaller 10 % av kjøpesummen til betaling. Påløpte renter tilfaller kjøper dersom beløpet overstiger et halvt rettsgebyr. Resten av kjøpesum med omkostninger og eventuelle tilvalg innbetales før overtakelse.

Kjøper skal sette seg inn i all salgsdokumentasjon: prospekt, viktig salgsinformasjon, leveransebeskrivelse, prisliste og kjøpekontrakt med vedlegg før avtale inngås.

Fremdrift og ferdigstillelse

Rammetillatelse er gitt 13.02.2024. Igangsettingstillatelse søkes ved kontrakt. Boligen estimeres ferdigstilt ca. 10 måneder etter byggestart.

Tomten leveres grovplanert og klargjort for tilsåing. Utomhusarbeider kan ferdigstilles etter innflytting, avhengig av årstid og fremdrift.

GODKJENT FOR HUSBANKFINANSIERING! Moderne enebolig i Krokstadelva – svært attraktiv beliggenhet | FINN eiendom

Plantegninger

Leveransebeskrivelse

Meld interesse

Din kontaktinformasjon

Din melding

Ved å sende inn skjema opprettes det en brukerprofil på blink-hus.no, og dine opplysninger lagres i vår digitale løsning. Utfyllende informasjon om behandlingen og hvordan du kan slette din profil finner du i vår personvernerklæring. Blink Hus vil sende deg nyhetsbrev basert på ditt kundeforhold hos oss. Dersom du ønsker å reservere deg mot nyhetsbrev, gjør du det enkelt ved å krysse av nedenfor.