Velkommen til Fidjeland Fjellgrend. Sirdal på sitt aller beste, 750meter over havet.
Solrikt, snøsikkert og fantastisk utsikt.
Her kan du nyte solen på terrassen fra morgen til kveld med utsikt utover den vakre høyfjellsnaturen i øvre Sirdal.
Kjøreveg helt til hytta – også om vinteren.
Fidjeland Fjellgrend tar nå form som et svært flott hytteområde med unik beliggenhet både sommer og vinter. 70 av 100 hytter solgt.
Her har du alt du trenger i umiddelbar nærhet.
Her kan du parkere bilen på Fredag og la den stå til du skal hjem igjen.
- Ski in / ski out til Fidjeland Skitrekk
- Langrennsløyper like utenfor døra
- Egen opparbeidet akebakke og varmestue internt i feltet
- Gangavstand til Sirdal Høyfjellshotell
- Fantastiske turmuligheter hele året. Gangavstand til Hilleknuten og Grubbå fra hytta Kort avstand også til startpunktet for Kjerag.
- Ingen gjennomganstrafikk i hyttefeltet
- Kun 9 min til nærmeste butikk

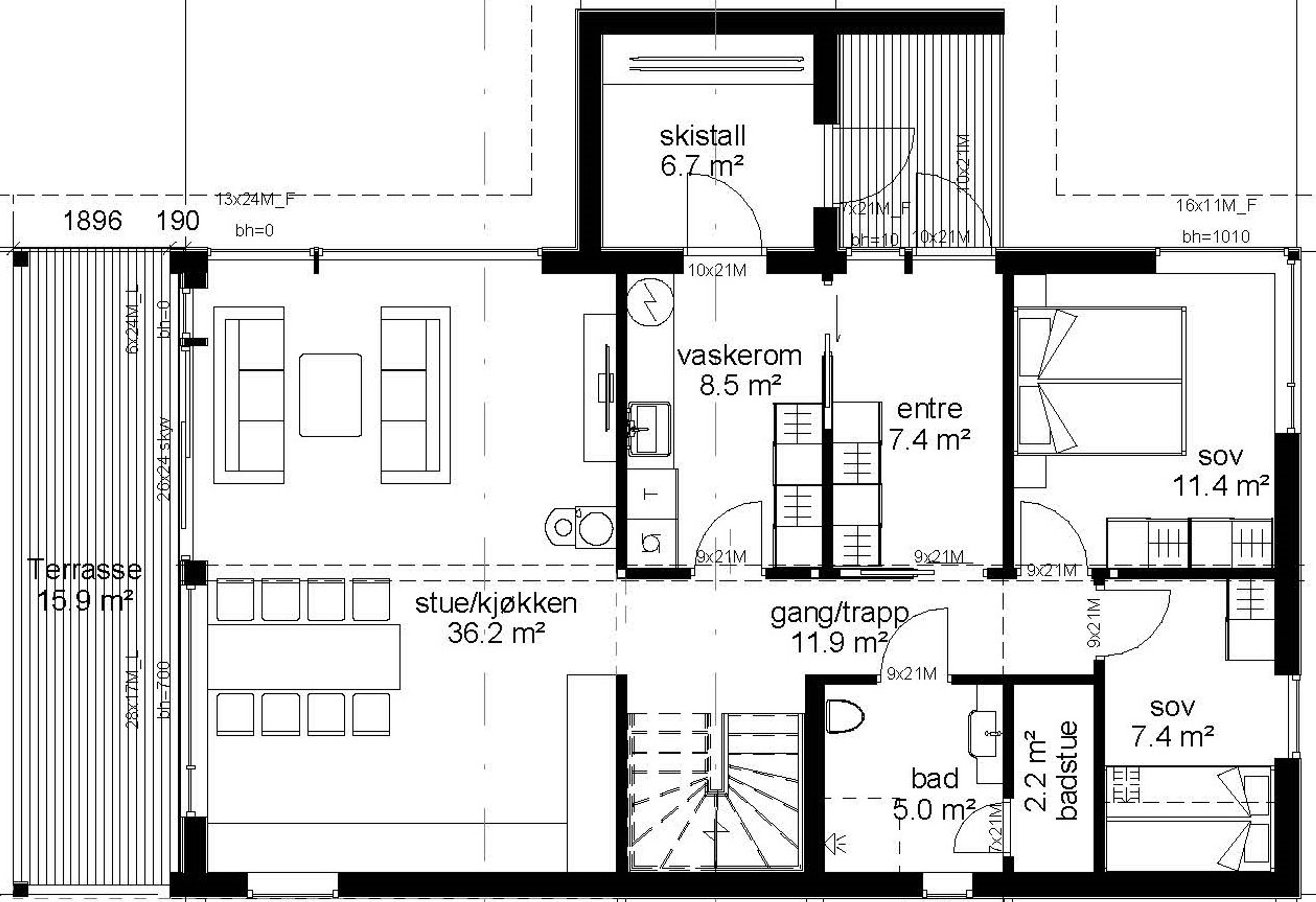
Hytten er av typen Gunnarskvæv og er prosjektert på tomt 13.
Populær familiehytte med gode planløsninger.
Nydelig selveier tomt på 1149m2.
Hytten er av god kvalitet og leveres med blant annet:
- 4 soverom
- 2 bad
- Fliselagt skistall med varmekabler
- Kvalitetskjøkken fra Egersund Kjøkkensenter med hvitevarer inkludert
- Slettpanel i fargen drivved i stue / kjøkken / gang
- Ovn type ild 9 med sort stålpipe
- Klargjort for bredbåndstilknytning
- Parkering på egen tomt
- Mulighet for garasje
- Mulighet for badstue
Ønsker du å endre materialvalg, kjøkken med mer kan dette enda ordnes.
Bildene i annonsen er tatt fra tilsvarende speilvendt hytte, bare med høyere knevegger og ekstra hems over kjøkken. Dette kan ordnes for tomt 13 også.
Omkostninger i tillegg til kjøpesum:
- Tinglysingsgebyr skjøte kr 545,-
- Tinglysingsgebyr pr. panterett kr 545,-
- Dokumentavgift kr. 2,5% av tomteverdi
- Kartforretning for tomter fra 1001 - 1500 m2: kr 18 588,-
- Behandlingsgebyr oppretting av ny fritidseiendom: kr 4 380,-
- Tilknytning til vann og kloakk kr 101 426,-