Hopp til hovedinnhold
1 / 0

Moderne og innholdsrik fritidsboliger med gode sol forhold og ski-inn ski-out! Mulighet for garasje og badstu.

Surtekvæven 4443 Tjørhom
Pris fra
7 390 000 kr
Omkostninger
130 364 kr
Totalpris
7 520 364 kr
Rune Gåsland
Selger / Prosjektutvikler
Prosjektet bygges av

Blink Hus Bjerkreim Trelast

Bolig og hytteleverandør i Sør-Rogaland med oppdrag over hele distriktet - fra Lindesnes i sør til Finnøy/ Hjelmeland i nord. Blink Hus har Norges mest fornøyde kjøpere av boliger i prosjektmarkedet 2024🏡 Bjerkreim Trelast på 2 plass av alle BlinkHus forhandlerne💪🏻💥🥂🏡 Årets beste bedrift i BlinkHus 2022🎉

Gå til forhandlersiden
Fidjeland Fjellgrend - har blitt et fantastisk hyttefelt. Pr. i dag er 70 av 100 hytter solgt. Hyttefeltet fremstår som gjennomført med flott samlende preg, og moderne hytte arkitektur med umiddelbær nærhet til blant annet langrennsløyper, alpinbakker og turmuligheter.

Prosjektfase

2025
Planlegging
Salget er i gang
Salgsstart
Etter nærmere avtale
Byggestart
Etter nærmere avtale
Overtakelse

Nøkkelinfo

Boligtype

Fritidsbolig

Bruksareal

141.1 m² (BRA)

Beskrivelse

Fidjeland Fjellgrend

Velkommen til Fidjeland Fjellgrend, som har blitt et særdeles flott hytteområde. Sirdal på sitt aller beste - 750meter over havet. Med unik beliggenhet både sommer og vinter.

  • Solrikt, snøsikkert og fantastisk utsikt.
  • Her kan du nyte solen på terrassen fra morgen til kveld med utsikt utover den vakre høyfjellsnaturen i øvre Sirdal.
  • Her har du alt du trenger i umiddelbar nærhet.
  • Kjøreveg til hytta; Her kan du parkere bilen på Fredag og la den stå til du skal hjem igjen.
  • Ski in / ski out til Fidjeland Skitrekk
  • Langrennsløyper like utenfor døra
  • Egen opparbeidet akebakke og varmestue internt i feltet
  • Gangavstand til Sirdal Høyfjellshotell
  • Fantastiske turmuligheter hele året. Gangavstand til Hilleknuten og Grubbå fra hytta Kort avstand også til startpunktet for Kjerag.
  • Ingen gjennomganstrafikk i hyttefeltet
  • Kun 9 min til nærmeste butikk


Ny prosjektert hytte type - Steinbu

  • Steinbu er en innholdsrik familiehytte med gode planløsninger over 2 etasjer.
  • Selveiertomt med supre solforhold i Sirdal.
  • Mulighet for garasje.
  • 4 soverom
  • 2 stuer
  • 2 bad
  • Bod som kan gjøres om til badstu


Hytten leveres av god kvalitet med blant annet:

  • Fliselagt skistall med varmekabler
  • Kvalitetskjøkken med hvitevarer inkludert
  • Slettpanel i fargen drivved i stue / kjøkken / gang
  • Ovn type ild 9 med sort stålpipe
  • Klargjort for bredbåndstilknytning
  • Parkering på egen tomt


Hytten er prosjektert. Ønsker du å endre materialvalg, kjøkken med mer kan dette enda ordnes.

Kontakt Rune for visning, prospekt, leveransebeskrivelse og tilvalgspriser eller for en uforpliktende hytteprat m.m.

Velkommen til fjells!

AVSTANDER

  • Gangavstand til Sirdal Høyfjellshotell
  • 10 min til matbutikk (Joker Fjellbutikken)
  • 7 min til Sirdal Fjellgolfklubb
  • 14-15 min til "Slottet Sirdal" som byr på gode matopplevelser servert i majestetiske omgivelser
  • 14-15 min til "Handleriet" og Bakeriet "Hekta"
  • 17 min til klatreparken "Høyt og lavt"
  • 27 min til Sirdal Huskyfarm som tilbyr ulike natur

Priser

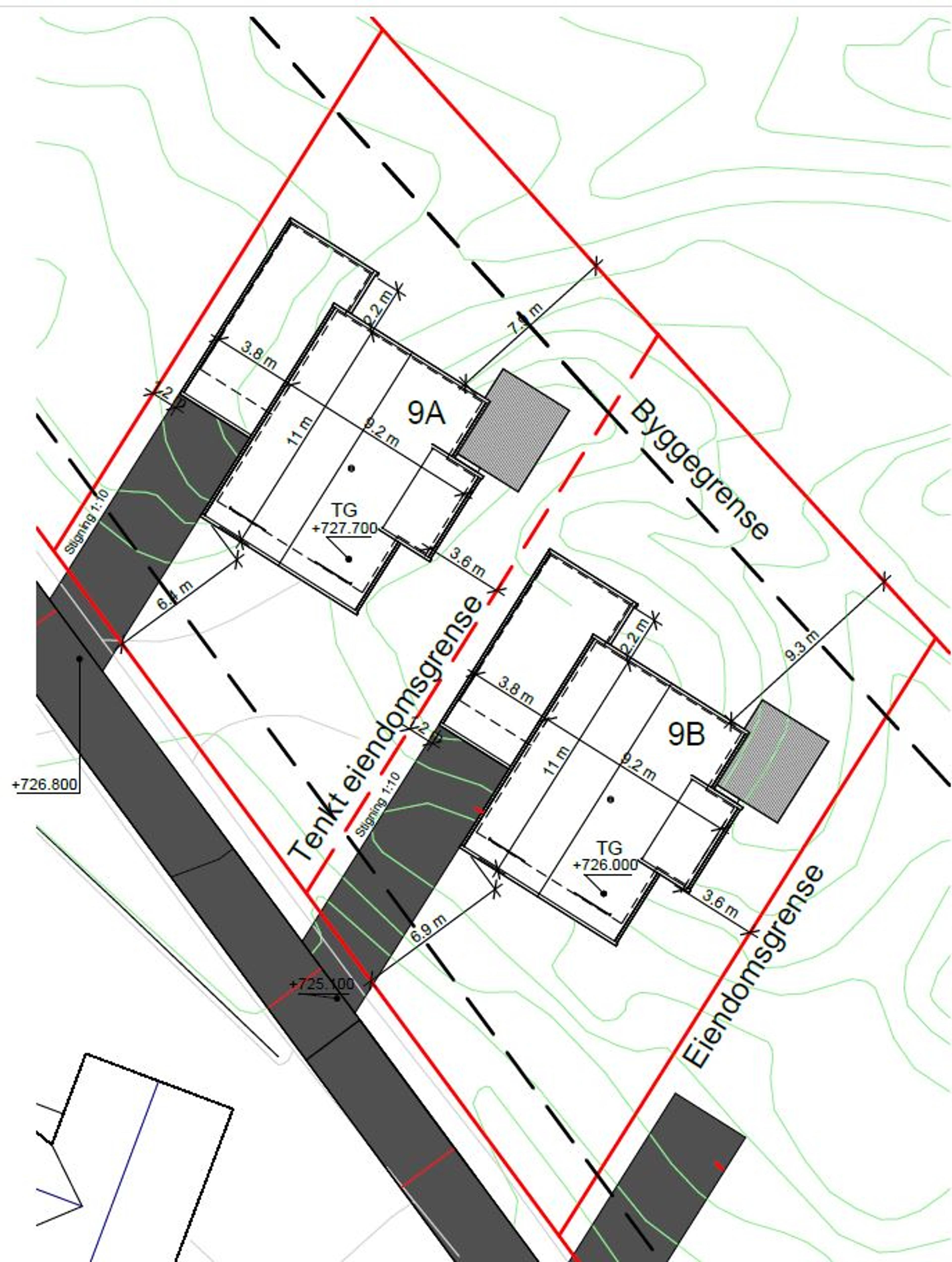
Pris 9A: 7 390 000.- nøkkelferdig eks. garasje.

Pris 10A: 7 490 000.- nøkkelferdig eks. garasje.

Pris 10B: 7 390 000.- nøkkelferdig eks. garasje.

Opsjon for ferdig garasje er 200 000.- pr.

Meld interesse

Din kontaktinformasjon

Din melding

Ved å sende inn skjema opprettes det en brukerprofil på blink-hus.no, og dine opplysninger lagres i vår digitale løsning. Utfyllende informasjon om behandlingen og hvordan du kan slette din profil finner du i vår personvernerklæring. Blink Hus vil sende deg nyhetsbrev basert på ditt kundeforhold hos oss. Dersom du ønsker å reservere deg mot nyhetsbrev, gjør du det enkelt ved å krysse av nedenfor.