TønsbergModerne hus
Nøkkelinformasjon
Laster pris
Soverom
Grunnflate (BYA)
Bruksareal (BRA)
Primærrom (P-rom)
Største lengde
Største bredde
Klimafotavtrykk
Antall tonn CO2e
CO2e pr BTA
Tønsberg er en flott og moderne bolig med mange interessante detaljer og funksjoner. Saltak med minimalt takutstikk, vinduer i hele fronten av andreetasje og både stående og liggende kledning er bare noe av det som gjør fasaden til Tønsberg røff og full av spill.
Tønsberg ble vår mest solgte bolig i 2025, og har de siste årene toppet våre salgslister i kjeden.
Særegent funkishus
Den åpne stue- og kjøkkenløsningen i andre etasje, med høye himlinger og vindusflater over hele gavlveggen, gir rommet store mengder lys og luft, samt flott utsikt over omgivelsene. Spiseplassen med innebygget sittebenk og stor kjøkkensone gir beboerne mye plass og komfort når de lager mat og spiser sammen. Peisovnen gir også en koselig atmosfære i rommet.
Andre etasje har i tillegg en stor overbygd terrasse med rekkverk i glass. Dette gir boligen en spennende karakter og en ekstra uteplass som kan brukes til å nyte utsikten eller til å ha utendørs sosiale sammenkomster.

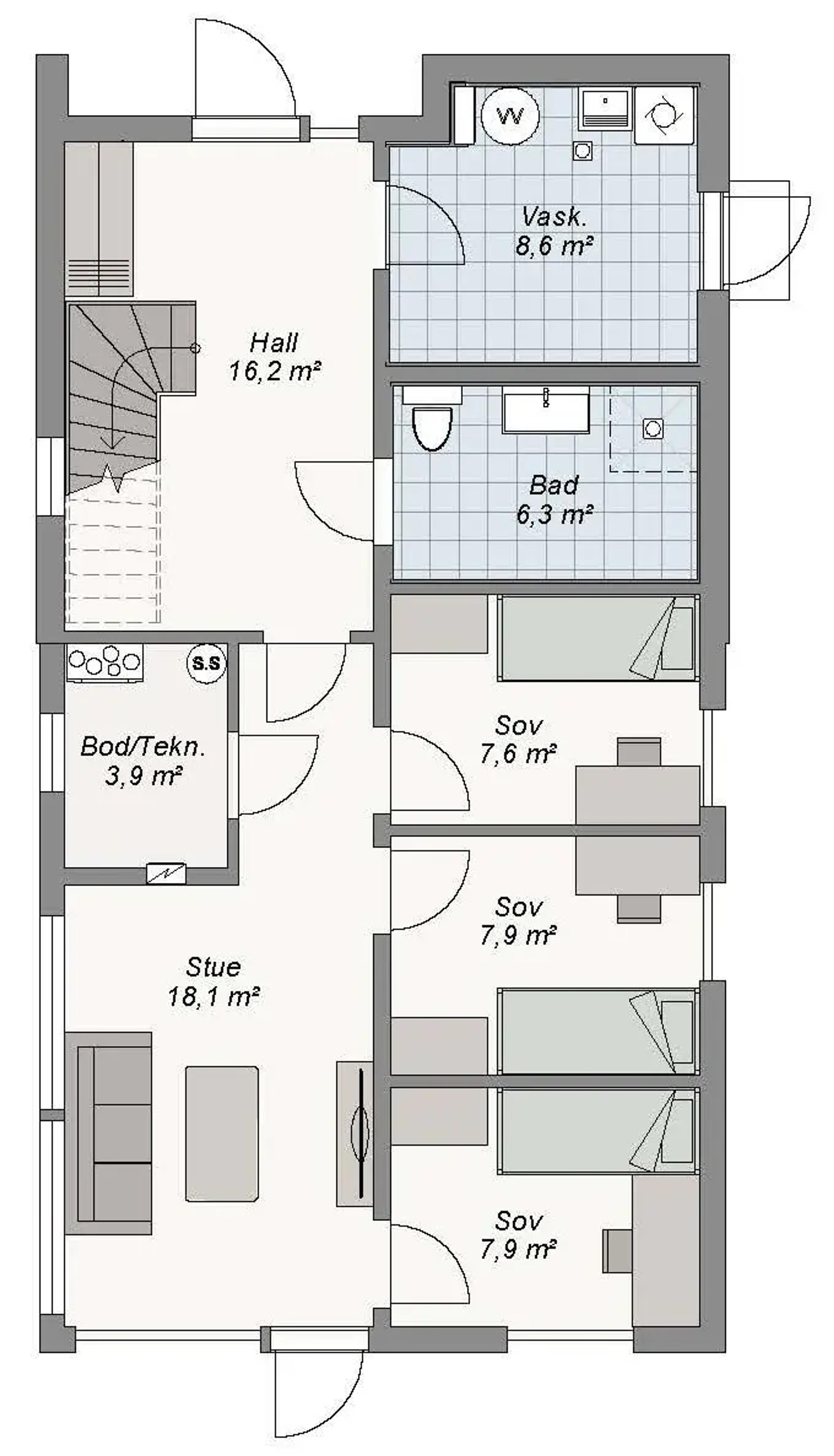
4 soverom
Med fire soverom gir Tønsberg beboerne mye plass og fleksibilitet. Det ene soverommet har walk in-closet og privat bad med plass til hjørnebadekar. Dette gir ekstra plass og komfort og gjør Tønsberg til et flott valg for familier eller de som ønsker å ha god plass til gjester.
Tønsberg har mange særegne og moderne detaljer og funksjoner, som gjør det til et unikt og attraktivt valg for de som leter etter et nytt hus.
Plan- og fasadetegninger:
Ønsker du en annen plantegning?
Modellen kan tilpasses dine behov, og både dimensjoner, rom og planløsning kan endres slik du vil ha det.





